Usa rapida MASTER ROLL
Usa rapida MASTER ROLL
Usa rapida MASTER ROLL

Usa rapida MASTER ROLL

Pentru informatii suplimentare ne gasiti numerele : 0723648848, 0743499488

 

Uși Rapide Industriale Master Roll - Performanță și Rezistență pentru Aplicații Comerciale

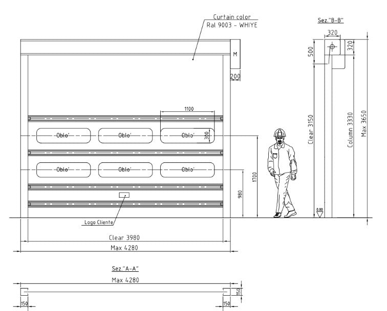
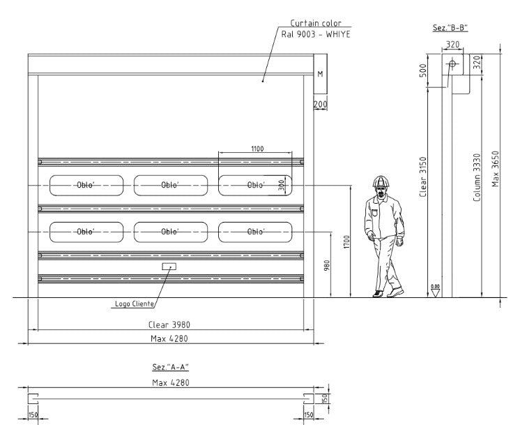
Ușile rapide Master Roll reprezintă soluția versatilă pentru medii industriale și comerciale cu cerințe medii de trafic. Proiectate cu o structură robustă și sistem de ghidare optimizat, aceste uși industriale garantează funcționare sigură și eficiență energetică pe termen lung.

Caracteristici Tehnice Uși Rapide Master Roll:

  • Structură consolidată - ghidaje verticale dreptunghiulare cu profile metalice rezistente
  • Rezistență la presiune - traverse metalice întărite pentru protecție împotriva vântului și diferențelor de presiune
  • Garnituri profesionale - sistem de etanșare din plastic de înaltă calitate pe ghidajele laterale
  • Dimensiuni maxime - până la 6000 x 6000 mm, ideal pentru deschideri medii și mari
  • Viteză de deschidere optimă - reduce timpii de așteptare și pierderea energiei termice

Aplicații Recomandate:

Ușile rapide Master Roll sunt perfecte pentru: depozite logistice, platforme de încărcare-descărcare, hale de producție, spații comerciale cu trafic intens, zone de separare între medii cu temperaturi diferite, centre de distribuție.

Sistemul de ghidare dreptunghiular asigură stabilitate superioară și funcționare lină, fiind recomandat pentru locații unde fiabilitatea este prioritară.

Avantaje Competitive:

✓ Raport calitate-preț excelent pentru aplicații industriale medii ✓ Întreținere simplificată - componente accesibile și durabile ✓ Rezistență crescută la solicitări mecanice și condiții meteo adverse ✓ Compatibilitate cu diverse sisteme de automatizare ✓ Instalare rapidă, timp redus de montaj

Configurare și Dimensionare:

Gamă completă de dimensiuni disponibile până la 6000 x 6000 mm. Fiecare ușă rapidă Master Roll poate fi personalizată cu:

  • Automatizare integrată (buton, telecomandă, senzori)
  • Ferestre de vizualizare
  • Culori RAL la comandă
  • Sistem de deschidere de urgență

📞 Consultanță tehnică gratuită - echipa noastră vă ajută să alegeți configurația optimă pentru aplicația dumneavoastră.

💰 Ofertă personalizată în funcție de dimensiuni și specificații tehnice.

Garanție comercială | Montaj profesional | Service post-vânzare

Pentru oferte personalizate va rugam a ne transmite solicitarea pe e-mail. 

CATALOG 

Pret de baza23.381,90 lei
/
TVA inclus. Livrare vizibil la Finalizarea cumparaturilor.
Dimeniune
Prețul produsului poate fi personalizat în funcție de dimensiunile exacte ale spațiului pe care îl aveți. Faceți clic pe formularul nostru, transmiteti-ne dimensiunile spatiului de montaj util și vă vom oferi nu doar un răspuns la cererea dumneavoastră, ci și cea mai bună soluție tehnică pentru proiectul aflat in desfasurare.

Acest site este protejat de hCaptcha și hCaptcha. Se aplică Politica de confidențialitate și Condițiile de furnizare a serviciului.

  • Oferim instalare si mentenata cu echipe profesioniste in Romania, Rep. Moldova, Bulgaria, Ungaria.

Alte produse care te-ar putea interesa