usa rapida cu impachetare Fold
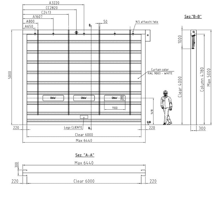
schta de gabarit usa rapida

Usa rapida Master PACK

Pentru informatii suplimentare ne gasiti numerele : 0723648848, 0743499488

Uși Rapide Industriale Master PACK  - Soluția Profesională pentru Etanșeitate și Eficiență

Ușile rapide FOLD cu sistem de împachetare reprezintă soluția ideală pentru aplicații industriale unde etanșeitatea și izolarea termică sunt esențiale. Fabricate cu standarde de calitate superioare, fiecare ușă industrială rapidă FOLD este testată complet, iar toate componentele electrice și electronice sunt verificate conform normelor europene.

Caracteristici Tehnice Uși Rapide FOLD:

  • Etanșeitate superioară - garnituri speciale montate pe verticalele laterale asigură închiderea spatiului
  • Rezistență la vânt crescută - stâlpi din otel zincat autoportanti 
  • Viteză de operare ridicată - optimizează fluxul de lucru și reduce pierderile termice
  • Instalare simplificată - montaj exterior posibil, fără a ocupa spațiu util din hală
  • Durabilitate garantată - componente de calitate industrială, întreținere redusă
  • Bari orizontale groase cu diametrul mare in partea inferioara 
  • Motoare performante si centrale realizare de GIOVI Italia
  • Dimensiuni maxime 14000x14000 mm

Aplicații Recomandate:

Ușile rapide rabatabile Master Pack  sunt ideale pentru medii industriale cu trafic intens: depozite, hale de producție, spații logistice, fabrici alimentare, zone cu cerințe de temperatură și igienă.

Configurare Personalizată și Preț:

Fiecare ușă rapidă Master Pack  este configurată conform specificațiilor exacte ale proiectului dumneavoastră. Prețul se stabilește în funcție de dimensiuni, automatizare și dotări suplimentare.

📞 Solicitați ofertă personalizată și consultanță tehnică gratuită pentru ușile industriale rapide Master Pack

Garanție extinsă | Service autorizat | Piese de schimb originale

Trimite-ti solicitarea dumneavoastra pe e-mail. 

 

FISA TEHNICA FOLD

 CATALOG 

 

Pret de baza25.908,00 lei
/
TVA inclus. Livrare vizibil la Finalizarea cumparaturilor.
Dimensiune
Prețul produsului poate fi personalizat în funcție de dimensiunile exacte ale spațiului pe care îl aveți. Faceți clic pe formularul nostru, transmiteti-ne dimensiunile spatiului de montaj util și vă vom oferi nu doar un răspuns la cererea dumneavoastră, ci și cea mai bună soluție tehnică pentru proiectul aflat in desfasurare.

Acest site este protejat de hCaptcha și hCaptcha. Se aplică Politica de confidențialitate și Condițiile de furnizare a serviciului.

  • Oferim instalare si mentenata cu echipe profesioniste in Romania, Rep. Moldova, Bulgaria, Ungaria.

Alte produse care te-ar putea interesa